[最も人気のある!] レストルームドレッサー 図面 336458-Toto レストルームドレッサー 図面
おはようございます! 交換できるくん北東京支店の後藤です。 今日は2月に新しく発売されました「totoレストルームドレッサー・システムシリーズ」についてご紹介致します。 こちらの商品は従来の商品と比べて手洗器のバリエーションや蛇口の形状が新しくなりました。年2月発売 年2月発売 上質な空間にこだわったセミオーダータイプのプレミアムシリーズと、お好みの空間を手軽に実現するパックタイプのコンフォートシリーズ。 レストルームドレッサーで空間がもっと素敵に変わります。西東京市 h邸 ネオレスト+レストルームドレッサー‼(株)吉野屋ビル 横浜営業所 リフォーム実例・費用のページです。totoのリフォーム情報サイトなら、自分にあったリフォームの実例・費用の情報収集から、全国の信頼できるリフォーム店(リモデルプロショップ)の検索まで
特長 Totoのトイレ 便器 手洗器 レストルームドレッサープレミアムシリーズ コンフォートシリーズ
Toto レストルームドレッサー 図面
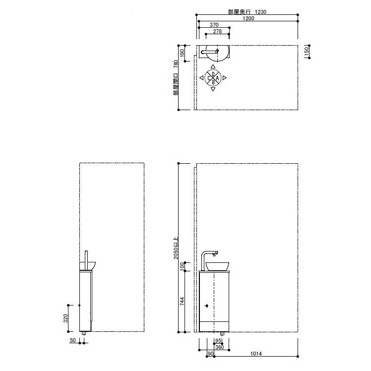
Toto レストルームドレッサー 図面-レストルームドレッサー システムシリーズ(mサイズ/lサイズ用)・セレクトシリーズ用 360×152(埋込代90)×800 フレーム:木質製 ※上下を逆にすることで、左右いずれの勝手 にも取り付けられます。 ※化粧棚との併設はできません。レストルームドレッサーセレクトシリーズ メニュー レストルームドレッサー セレクトシリーズ サイズ一覧 空間プラン・参考価格 他の商品を見る ネオレストnx ネオレストah・rh gg・gg800 レストパル ピュアレストex ウォシュレットアプリコット 商品説明 翻譯 空間サイズごとに豊富な



レストルームドレッサー 取扱説明書 Manualzz
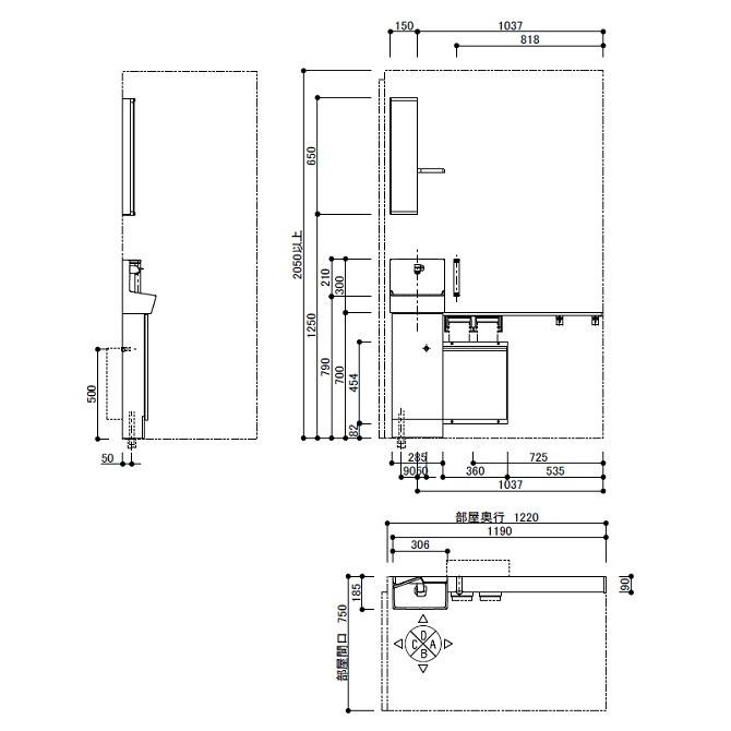
商品詳細 メーカー toto 商品名 レストルーム ドレッサー コンフォートシリーズ ulra2rsbnnnnn1nn セット内容 付属するもの・手洗器:l50d #nw1・排水金具:ugt22bsw・ブラケット:ugx194a・ストレート形止水栓:ugt4bd11u・水栓:ugtlc11c v1・給水ホース:ugt v1ULRB1LSAN2NNN1HN レストルームドレッサーコンフォートシリーズ TOTO株式会社 こちらの商品はMediaPressNetに掲載されております。住宅全般 レストルームドレッサー 販売終了品レストルームドレッサー システムシリーズ 1601 機能性とデザイン性を兼ね備えたセミオーダータイプの最高級レストルームドレッサーシ
手洗器 レストルームドレッサー スリムタイプg / uhlg25l5wws11a,uhlg22l1mws11a,他 部門 商品デザイン部門 受賞企業 東陶機器株式会社 (福岡県) 受賞番号 02a 受賞概要 02年度グッドデザイン お好みの空間を手軽に実現できるパックタイプ 「レストルームドレッサーコンフォートシリーズ」 2月3日(月)新発売 「レストルーム トイレ/手洗器/レストルームドレッサー 図面プレビューのページで、pdfデータの内容を確認した上で、pdfデータのレストルームドレッサー コンフォートシリーズ年2月~ 年2月出荷分~の仕様を掲載しています。 側面設置 品番 木ねじ 位置図面 キャビネット 手洗器 左右勝手
TOTO レストルームドレッサーコンフォートシリーズを ご紹介いたします。 主な特長 ・ デザイン性の高いフローティングキャビネットに、収納力を併せ持ったハーフキャビネットを品揃え。 ・ キャビネットの蹴込みや紙巻器ボックス、ウォール 全国ネットワークで、写真か図面か仕様書を頂ければ即対応します! レストルームドレッサー システムシリーズ(Mセルフリム用)用 60×136×600 握り径:φ32mm 握り部:天然木製 9 「特任教授」とか凄そうな名前だけど住宅設備機器を販売しております。アクアshopuld26TOTO 手洗器 レストルームドレッサー スリムシリーズ 手洗器単体タイプ ULD26 通販 Yahoo!ショッピング



札幌市戸建住宅2階リノベーション トイレ編 浴室 お風呂 洗面 水廻りのリフォーム 札幌 キッチンワークス



Tech Nikkeibp Co Jp Kn Article Building Product 6850 Rdsystem Pdf
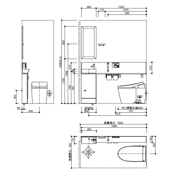
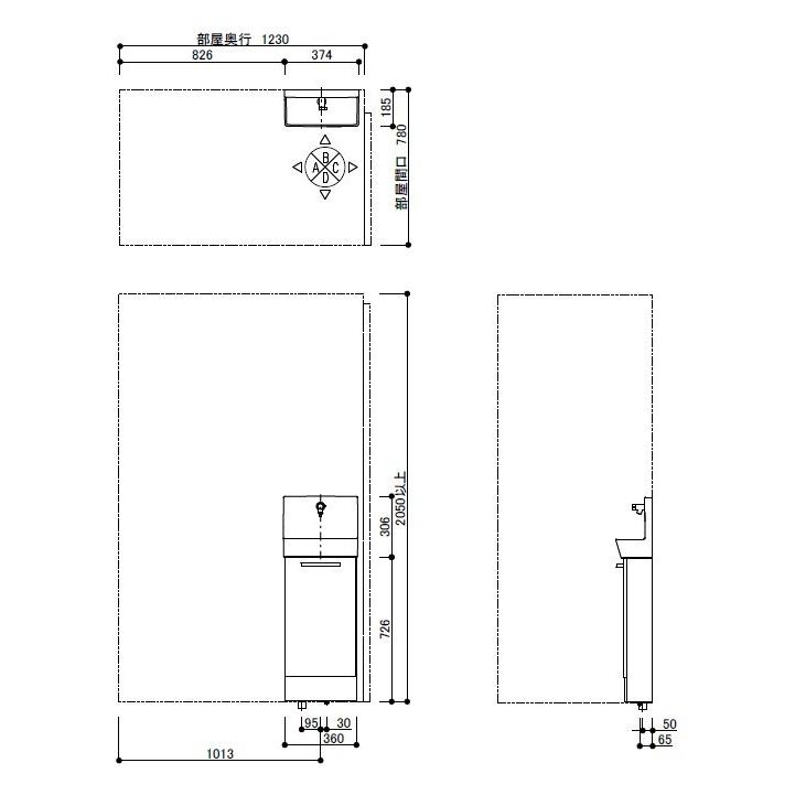
住宅全般 レストルームドレッサー 販売終了品レストルームドレッサー セレクトシリーズ 1601 空間サイズごとに豊富なバリエーションから選んでトイレ空間を演出できるレストルームドレッサーセレクトシリーズ。Rest room(レストルーム)とは。意味や解説、類語。劇場・デパートなどの便所。化粧室。また、便所・洗面所の付いた休憩室。 goo国語辞書は30万4千件語以上を収録。政治・経済・医学・ITなど、最新用語の追加も定期的に行っています。レストルームドレッサー システムシリーズは 受注生産品です。 納期は約2週間(大型連休除く)かかります。 商品名 レストルームドレッサー システムシリーズ 4voc基準適合(木質建材) 住宅部品voc表示ガイドライン voc放散性能 表示ルール (木質建材



Totoさんのペーパークラフト 4 カラダにやさしい住まいを



toto株式会社 レストルームカタログ カタログビュー
レストルームドレッサー プレミアムシリーズ 商品紹介 カタログ 説明書 レストルームドレッサー コンフォートシリーズ 商品紹介 カタログ 説明書 レストルームドレッサー スリムシリーズ カタログ 説明書 手洗器付キャビネット カタログ 説明書ダウンロード カタログビューで見る レストルームづくりのポイント2 マイバインダーに追加 ダウンロード カタログビューで見る コンセプトラインアップ1 マイバインダーに追加 ダウンロードULD26L1WWSN22N1A レストルームドレッサースリムシリーズ TOTO株式会社 こちらの商品はMediaPressNetに掲載されております。



Tech Nikkeibp Co Jp Kn Article Building Product 6850 Rdsystem Pdf



レストルームドレッサー 取扱説明書 Manualzz
他のレストルームドレッサー(システムシリーズ、セレクトシリーズ)にシャワーを取り付けることはできますか? アクアオート(自動水栓 きれい除菌水タイプ) tena40aj・tena41ajは、 手洗器(レストルームドレッサーを含む)にセットできますか?品番・価格・図面一覧ネオレストnxタイプ レストルームドレッサー_(プレミアムシリーズ)専用大便器価格表/品番・希望小売価格一覧 プレミアムシリーズ_プランの品番・仕様選択のステップ/立管対応 ;レストルームドレッサー(プレミアムシリーズ)専用大便器価格表/品番・希望小売価格一覧/電気料金 プレミアムシリーズ_プランの品番・仕様選択のステップ/立管対応表 品番・価格・図面一覧GG/GG8001 品番・価格・図面一覧ピュアレストEX 品番



史上最も激安 Toto トイレ アクセサリー Ugyhr600w2 インテリア バー 600サイズ レストルームドレッサー システム用 Ugyhr600w2 Nw1 Mww Ugyhr600w2 換気扇の通販ショップ プロペラ君 通販 Yahoo シ Www Greenworms Org



Ulra2lsdn1nnn1nn レストルームドレッサーコンフォートシリーズ Toto株式会社
9523円 ハンドグリップ ugyhb1m1 トイレ システムシリーズ (mセルフリム用) アクセサリー ugyhb1m1#nw1、#mww (mセルフリム用) toto toto トートー キッチン用品・食器・調理器具 キッチン整理用品 タオルハンガー toto ugyhb1m1 レストルームドレッサー ハンドグリップ 用 アクセサリー toto トートーToto レストルーム ドレッサー コンフォートシリーズ ulra2rsbnnnnn1nn 手洗器 l50d #nw1 水栓金具 他※商品詳細をご確認ください。 Q&A TOTO レストルーム 01 大便器セット(廃番) 大便器の洗浄水量を教えてください。



札幌市戸建住宅2階リノベーション トイレ編 浴室 お風呂 洗面 水廻りのリフォーム 札幌 キッチンワークス



楽天市場 Totoulrd1lsb12nnn1wwレストルームドレッサーコンフォートシリーズsサイズメーカー直送材のみ エイプラス



Tech Nikkeibp Co Jp Kn Article Building Product 6850 Rdsystem Pdf



ボード インテリア のピン



空間プラン 参考価格 Totoのトイレ 便器 手洗器 レストルームドレッサープレミアムシリーズ コンフォートシリーズ



Toto コンフォートシリーズ Ulrb3lsannnnn1hh 手洗器 メーカー直送 材のみ Ulrb3lsannnnn1hh エイプラス 通販 Yahoo ショッピング



レストルームドレッサー プレミアムシリーズ コンフォートシリーズ Totoのトイレ 便器 手洗器



Cadデータ検索結果 Toto Com Et コメット 建築専門家向けサイト



Tech Nikkeibp Co Jp Kn Article Building Product 6850 Rdsystem Pdf



レストルームドレッサープレミアムシリーズ コンフォートシリーズ Totoのトイレ 便器 手洗器



楽天市場 Totould26l1wwsnnnnnaレストルームドレッサーsサイズメーカー直送材のみ エイプラス



Toto レストルームドレッサー プレミアム コンフォート シリーズを新発売 建築設備 Setsubit



Uld24l1hhd21nb1a レストルームドレッサースリムシリーズ Toto株式会社



レストルームドレッサー セレクトシリーズ 堀川住器 事務スタッフブログ



Cadデータ検索結果 Toto Com Et コメット 建築専門家向けサイト



Toto 手洗器 カタログ みんな探してる人気モノ Toto 手洗器 カタログ 住宅 不動産



空間プラン 参考価格 Totoのトイレ 便器 手洗器 レストルームドレッサープレミアムシリーズ コンフォートシリーズ



特長 Totoのトイレ 便器 手洗器 レストルームドレッサープレミアムシリーズ コンフォートシリーズ



Toto レストルーム Uld14l1ffs21n2na スリムタイプc 埋込なし カウンタータイプ Uld14l1ffs21n2na エイプラス 通販 Yahoo ショッピング



素材にこだわった和モダンのトイレ 株 アート住宅 リフォーム事例



Toto レストルーム Ulrb1rsbn2nnn1bn コンフォートシリーズ sサイズ タイプ単体キャビネット Ulrb1rsbn2nnn1bn エイプラス 通販 Yahoo ショッピング



Tech Nikkeibp Co Jp Kn Article Building Product 6850 Rdsystem Pdf



Ulre2lsabb レストルームドレッサーコンフォートシリーズ Toto株式会社



1



Totoサイト内検索 Toto Com Et コメット 建築専門家向けサイト



1



Totoサイト内検索 Toto Com Et コメット 建築専門家向けサイト



楽天市場 Totoレストルームドレッサープレミアムシリーズces97mr Nw1 wl一体形便器ネオレストah1ulpb1cln1390c カウンターセットulnb1cln1390ac11bc 手洗器セットugyhr600w3mwwym3580fcメーカー直送材のみ エイプラス



レストルームドレッサー キャビネット奥行150mm 部屋 トイレ 住宅設備ペーパークラフト Toto



即発送可能 Totoulrb1rsbn2nnn1bnレストルームドレッサーコンフォートシリーズsサイズメーカー直送材のみ エイプラス Teamsmithfit Nl



toto株式会社 レストルームカタログ カタログビュー



Toto レストルームドレッサーフローティングデザインシリーズ 建築設備 Setsubit



Toto レストルームドレッサーフローティングデザインシリーズ 建築設備 Setsubit



Cadデータダウンロード Toto Com Et コメット 建築専門家向けサイト



Cadデータ検索結果 Toto Com Et コメット 建築専門家向けサイト



特長 Totoのトイレ 便器 手洗器 レストルームドレッサープレミアムシリーズ コンフォートシリーズ



商品紹介 愛知県一宮市での水漏れ修理やリフォームなら 瓶久商店 Toto水彩プラザ一宮店 トイレ キッチン 浴室



給水露出ユニット Hh Toto の通販 配管部品 Com



Cadデータダウンロード Toto Com Et コメット 建築専門家向けサイト



ボード トイレ インテリア のピン



1



新発田市 トイレリフォーム 新潟 新発田のリフォームならアクアプラザ イノウエ



Toto ページ 3 建築設備 Setsubit



楽天市場 Totoulrb1lsan2n2n1bnレストルームドレッサーコンフォートシリーズsサイズメーカー直送材のみ エイプラス



Cadデータダウンロード Toto Com Et コメット 建築専門家向けサイト



toto株式会社 レストルームカタログ カタログビュー



話題の新商品 建設総合ポータルサイト けんせつplaza



レストルームドレッサー キャビネット奥行280mm 部屋 トイレ 住宅設備ペーパークラフト Toto



Toto 浴室 図面 Amrowebdesigners Com



札幌市戸建住宅2階リノベーション トイレ編 浴室 お風呂 洗面 水廻りのリフォーム 札幌 キッチンワークス



レストルームドレッサー キャビネット奥行150mm 部屋 トイレ 住宅設備ペーパークラフト Toto



toto株式会社 レストルームカタログ カタログビュー



Ulrb1lsan2nnn1hn レストルームドレッサーコンフォートシリーズ Toto株式会社



施工ガイド 修理施工ナビ Com Et コメット Toto



Cadデータダウンロード Toto Com Et コメット 建築専門家向けサイト



Toto Uld12l1wwaa レストルームドレッサー スリムタイプc 埋込なし メーカー直送 材のみ Uld12l1wwaa エイプラス 通販 Yahoo ショッピング



Cadデータ検索結果 Toto Com Et コメット 建築専門家向けサイト



トイレの手洗いと収納 目黒区m様邸の場合 その2 目黒区 世田谷区でリフォームのことならケンテック



Toto コンフォートシリーズ Ces98r Nw1 便器 Ulre2lsajw 手洗器付カウンターセット メーカー直送 材のみ Ces98rnw1ulre2lsajw エイプラス 通販 Yahoo ショッピング



Totoサイト内検索 Toto Com Et コメット 建築専門家向けサイト



他の組合せ 仕様 をご希望の場合は お問合せ ボタンより 仕様をご指定の上 見積依頼をお願いいたします Totoレストルームドレッサープレミアムシリーズulpc1lrn1915m カウンターセットulnc1lrn1915aa21jm手洗器セットugw101 Ew 背面ウォール収納キャビネットメーカー直送



Toto Uld12l1wwaa レストルームドレッサー スリムタイプc 埋込なし メーカー直送 材のみ Uld12l1wwaa エイプラス 通販 Yahoo ショッピング



Totoサイト内検索 Toto Com Et コメット 建築専門家向けサイト



Toto レストルームドレッサー プレミアム コンフォート シリーズを新発売 建築設備 Setsubit



ウォシュレット エコカラット シャワーtotoulrb1lban2nnn1bnレストルームドレッサー コンフォートシリーズsサイズメーカー直送材のみ エイプラス他の組合せ 仕様 をご希望の場合は お見積依頼 ボタンより 品番をご指定の上 見積依頼をお願いいたします



空間プラン 参考価格 Totoのトイレ 便器 手洗器 レストルームドレッサープレミアムシリーズ コンフォートシリーズ



Totoコンフォートシリーズ モバイル トイレリフォーム専門店



Totoのレストルームドレッサーセレクトシリーズmサイズ単体タイプキャビネット付き ジョンさんのtotoのトイレ手洗い イエナカ手帖



Cadデータダウンロード Toto Com Et コメット 建築専門家向けサイト



レストルームドレッサー キャビネット奥行280mm 部屋 トイレ 住宅設備ペーパークラフト Toto



Toto 浴室 図面 Htfyl



toto株式会社 Toto設計施工資料集 カタログビュー



Ulrd2lsa124nn1kk レストルームドレッサーコンフォートシリーズ Toto株式会社



toto株式会社 レストルームカタログ カタログビュー



レストルームドレッサープレミアムシリーズ コンフォートシリーズ Totoのトイレ 便器 手洗器



札幌市戸建住宅2階リノベーション トイレ編 浴室 お風呂 洗面 水廻りのリフォーム 札幌 キッチンワークス



レストルームドレッサー キャビネット奥行150mm 部屋 トイレ 住宅設備ペーパークラフト Toto



Ces98pzr Nw1 Kjk Toto ネオレスト ウォシュレット一体形便器ahw レストルームドレッサー専用 Wg0 Ces98pzr Nw1 Kjk 通販 Yahoo ショッピング



送付資料サンプル Toto Com Et コメット 建築専門家向けサイト



Toto Cs900br Nw1取扱説明書 商品図面 施工説明書 分解図 通販 プロストア ダイレクト



1



楽天市場 Totoulre3raa31nn14jjレストルームドレッサーコンフォートシリーズmサイズメーカー直送材のみ エイプラス



楽天市場 Totoulrd1lsb1nnnn1hhレストルームドレッサーコンフォートシリーズsサイズメーカー直送材のみ エイプラス



Toto Cs900br Nw1取扱説明書 商品図面 施工説明書 分解図 通販 プロストア ダイレクト



Totoサイト内検索 Toto Com Et コメット 建築専門家向けサイト



Cadデータ検索結果 Toto Com Et コメット 建築専門家向けサイト



Totoコンフォートシリーズ モバイル トイレリフォーム専門店



Toto レストルームドレッサーフローティングデザインシリーズ 建築設備 Setsubit



Totoコンフォートシリーズ モバイル トイレリフォーム専門店



Cadデータ検索結果 Toto Com Et コメット 建築専門家向けサイト



公式店舗 Toto トイレ アクセサリー Ugw751w ウォール収納 レストルームドレッサー スリムタイプc用 Ugw751w Nw1 Ml Mw Toto トートー 魅力的な Medicarehealth Co Za



Cadデータダウンロード Toto Com Et コメット 建築専門家向けサイト



レストルーム ドレッサー Ultimatemexico Org



Cadデータダウンロード Toto Com Et コメット 建築専門家向けサイト



施工例タンクレストイレ Toto ネオレストrh レストルームドレッサーシステムシリーズ



Cadデータダウンロード Toto Com Et コメット 建築専門家向けサイト


コメント
コメントを投稿